Skip to main content
Saad Saleem Tabani
Broker of Record & Home Developer

Meet Saad Saleem Tabani

With over a decade of experience in the Canadian housing market and leading many residential development projects. At Bridge we have honed our skills to provide you with a results-driven real estate experience. We build homes, help families Bridge into their next home and navigate complex real estate trends. Learn more

120 Parkdale Avenue Hamilton (Normanhurst), Ontario L8H5W9

Open Map
4
Beds
4
Baths

Property Details

Basic Information
MLS® ID: 28626574
Status: Active
Bedrooms: 4
Bathrooms: 4
Partial Bathrooms: 2
Location
Full Address: 120 Parkdale Avenue Hamilton (Normanhurst), Ontario L8H5W9
City: Hamilton (Normanhurst)
Province/State: Ontario
Postal Code: L8H5W9
Country: Canada
Coordinates: 43.239396, -79.790452
Property Details
Property Type: house
Utility Information

Financial Details

Detail Amount
List Price $1,285,000

Financial Calculator

Enter your home purchase details to estimate your monthly mortgage payment.

$
%
years
%
$
$
%

Already know your loan amount? Calculate your payment details here.

$
years
%

Location Details

Hamilton (Normanhurst) Property Description

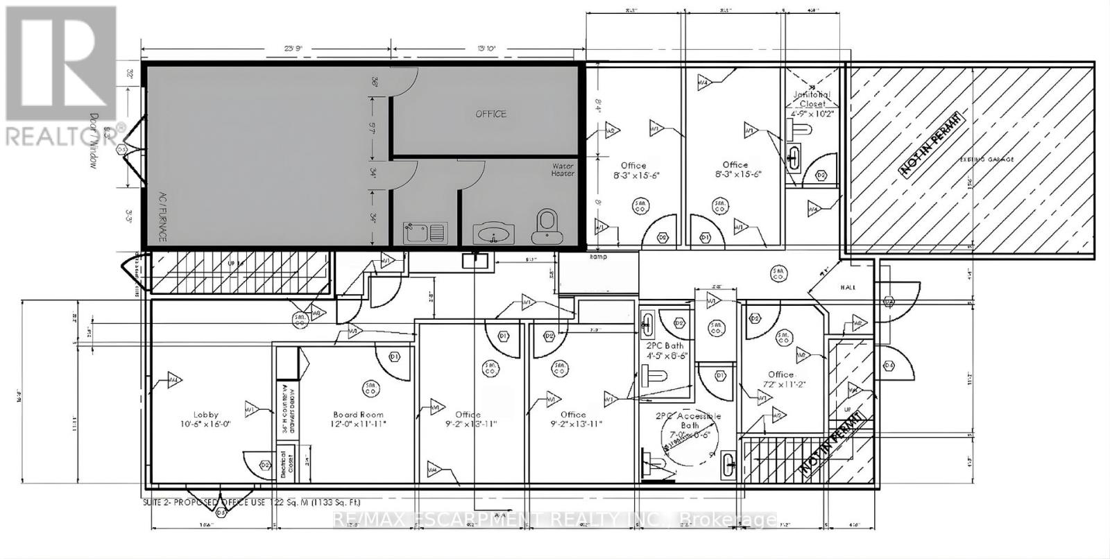
Approximately 4,900 sq. ft. over two floors with C5 zoning permitting community shopping and residential uses. Excellent high-traffic, high-visibility location on a busy street. Solid construction featuring concrete block walls and a concrete core slab ceiling. Parking available for 10+ vehicles. Tenant(s) pay all utilities. Property includes separate electric, gas, and water meters, as well as individual furnaces, air conditioners, and hot water tanks. Asphalt shingles replaced in 2020. (id:58062)