Skip to main content
Saad Saleem Tabani
Broker of Record & Home Developer

Meet Saad Saleem Tabani

With over a decade of experience in the Canadian housing market and leading many residential development projects. At Bridge we have honed our skills to provide you with a results-driven real estate experience. We build homes, help families Bridge into their next home and navigate complex real estate trends. Learn more

715 Don Mills Avenue Toronto (Flemingdon Park), Ontario M3C1S4

Open Map
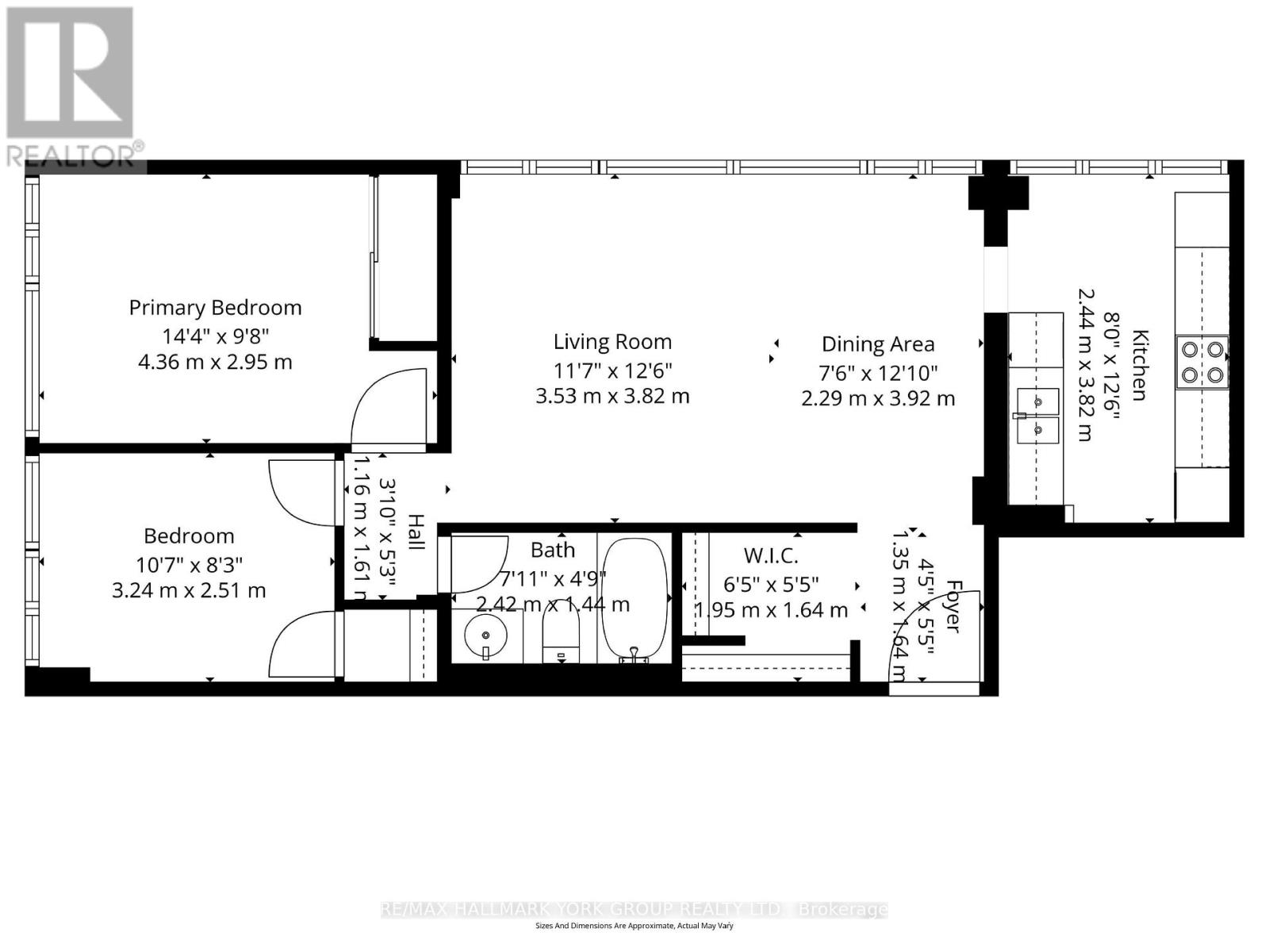
2
Beds
1
Baths

Property Details

Basic Information
MLS® ID: 29242825
Status: Active
Bedrooms: 2
Bathrooms: 1
Location
Full Address: 715 Don Mills Avenue Toronto (Flemingdon Park), Ontario M3C1S4
City: Toronto (Flemingdon Park)
Province/State: Ontario
Postal Code: M3C1S4
Country: Canada
Coordinates: 43.710738, -79.333729
Property Details
Property Type: condo-apartment
Utility Information

Financial Details

Detail Amount
List Price $499,900

Financial Calculator

Enter your home purchase details to estimate your monthly mortgage payment.

$
%
years
%
$
$
%

Already know your loan amount? Calculate your payment details here.

$
years
%

Location Details

Toronto (Flemingdon Park) Property Description

Step Into Homeownership With This Completely Remodelled, Bright & Stylish 770SqFt Corner Suite at Glen Valley Condos. This 2-Bedroom Home Delivers Rare Space, Sunlight With Both South and West Exposure. Fully Updated Top to Bottom, It Offers Modern Design, Premium Finishes, and a True Move-In Ready Lifestyle.The Open-Concept Living Area Features Luxury Vinyl Plank Flooring, Sound-Absorbing Panels, Updated Trim, New Doors, Modern Fixtures, and a Striking Accent Wall. The All-New Kitchen Impresses With Push-Open Cabinetry, Herringbone Wood Countertops, Integrated Fridge/Freezer and Dishwasher, Plus Ample Storage and Counter Space. Appliances Include a Stainless Steel Stack Washer/Dryer (2023) and Black Stove, with Integrated Fridge and Dishwasher (All 2024!). Step Into The Spa Like Bathroom That Has Been Thoughtfully Rebuilt With a Modern Vanity, Quartz Countertop, Luxury Vinyl Tile, Limewash Paint, Heated/Defogging Mirror, Elegant Bowl Sink, and New Fixtures Throughout. Premium Top-Down/Bottom-Up Roller Blinds Offer Ideal Light and Privacy Control. Parking and Locker Are Also Included, and the Monthly Fee Covers Everything! – Hydro, Heat, Water, Cable TV, and Second Parking Spot Available For $50/month, Ample Visitor Parking Available.. Amenities Are a Major Highlight: Dive Into the Massive Indoor Pool, Unwind in the Saunas, Work Out in the Full Gym, or Host in the Stylish Party/Games Room. An Unbeatable Location in One of Toronto’s Fastest-Growing Pockets. Located Minutes to the Shops at DonMills, DVP, TTC, Parks, and Schools, This Is a Lifestyle Upgrade From Every Angle. Move-in Ready, Extensively Renovated, and Offering Exceptional Value for the Area. This is The One You’ve Been Waiting For! (id:58062)