Skip to main content
Saad Saleem Tabani
Broker of Record & Home Developer

Meet Saad Saleem Tabani

With over a decade of experience in the Canadian housing market and leading many residential development projects. At Bridge we have honed our skills to provide you with a results-driven real estate experience. We build homes, help families Bridge into their next home and navigate complex real estate trends. Learn more

3573 Dominion Avenue Fort Erie (Ridgeway), Ontario L0S1N0

Open Map
3
Beds
3
Baths

Property Details

Basic Information
MLS® ID: 28890291
Status: Active
Bedrooms: 3
Bathrooms: 3
Location
Full Address: 3573 Dominion Avenue Fort Erie (Ridgeway), Ontario L0S1N0
City: Fort Erie (Ridgeway)
Province/State: Ontario
Postal Code: L0S1N0
Country: Canada
Coordinates: 42.884556, -79.048357
Property Details
Property Type: townhouse
Utility Information

Financial Details

Detail Amount
List Price $779,000

Financial Calculator

Enter your home purchase details to estimate your monthly mortgage payment.

$
%
years
%
$
$
%

Already know your loan amount? Calculate your payment details here.

$
years
%

Location Details

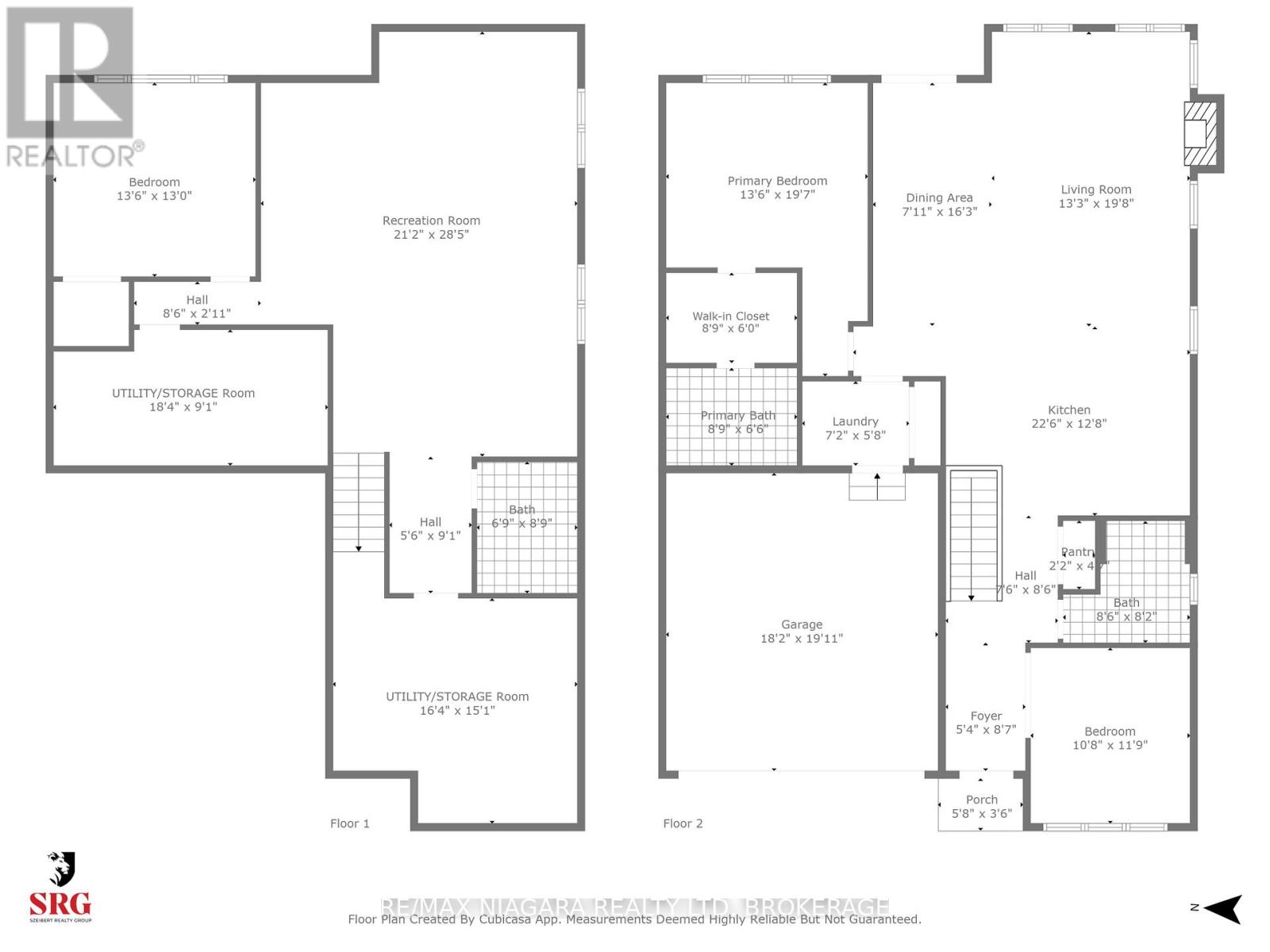
Fort Erie (Ridgeway) Property Description

Experience coastal living in Ridgeway with this end-unit luxury bungalow townhome offering nearly 2,500 sq/ft of finished space. Just minutes from Lake Eries shoreline, sandy beaches, and the charm of local shops and trails, this home delivers both lifestyle and comfort. Step inside to soaring vaulted ceilings, hardwood floors, and expansive windows that invite natural light throughout. The open-concept design flows effortlessly from the chefs kitchen; with quartz countertops, sleek cabinetry, stainless appliances, and a large island into the living area where a gas fireplace creates the perfect focal point. The primary suite is a private retreat with a spa-inspired ensuite featuring a glass shower and double vanity, plus a walk-in closet. A finished lower level extends the living space with endless options for guests, recreation, or a home office. Outdoors, enjoy landscaped grounds, spacious patio deck, and the convenience of a double garage. Meticulously maintained and built in 2019, this low maintenance residence blends modern design with small-town charm, ideal for families and retirees alike. Book your private showing today and experience Ridgeways coastal lifestyle firsthand! (id:58062)