Skip to main content
Saad Saleem Tabani
Broker of Record & Home Developer

Meet Saad Saleem Tabani

With over a decade of experience in the Canadian housing market and leading many residential development projects. At Bridge we have honed our skills to provide you with a results-driven real estate experience. We build homes, help families Bridge into their next home and navigate complex real estate trends. Learn more

27 Moneypenny Avenue Vaughan (Beverley Glen), Ontario L4J0K9

Open Map
3
Beds
4
Baths

Property Details

Basic Information
MLS® ID: 29295892
Status: Active
Bedrooms: 3
Bathrooms: 4
Partial Bathrooms: 2
Location
Full Address: 27 Moneypenny Avenue Vaughan (Beverley Glen), Ontario L4J0K9
City: Vaughan (Beverley Glen)
Province/State: Ontario
Postal Code: L4J0K9
Country: Canada
Coordinates: 43.8075424, -79.4737076
Property Details
Property Type: townhouse
Utility Information

Financial Details

Detail Amount
List Price $949,000

Financial Calculator

Enter your home purchase details to estimate your monthly mortgage payment.

$
%
years
%
$
$
%

Already know your loan amount? Calculate your payment details here.

$
years
%

Location Details

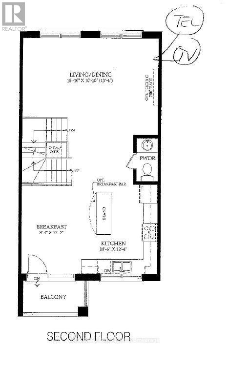
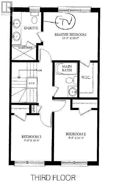
Vaughan (Beverley Glen) Property Description

Beautifully upgraded 3-bed, 4-bath, Just Finished Basement, solid brick townhome in the heart of Beverley Glen!This stylish home features a spacious open-concept layout with high ceilings, large windows, and a sun-filled living/dining area that opens to a charming balcony. The modern kitchen boasts a central island and stainless steel appliances.Enjoy a cozy media/family room with walk-out to the backyard, and a luxurious primary suite with a walk-in closet and 3-piece ensuite.Extras include 9-ft ceilings upstairs, an attached garage, visitor parking, and quality finishes throughout.Prime location just minutes from Highways 400, 407, and 7, close to top schools, parks, and shopping. (id:58062)