Skip to main content
Saad Saleem Tabani
Broker of Record & Home Developer

Meet Saad Saleem Tabani

With over a decade of experience in the Canadian housing market and leading many residential development projects. At Bridge we have honed our skills to provide you with a results-driven real estate experience. We build homes, help families Bridge into their next home and navigate complex real estate trends. Learn more

12 Riverdale Avenue Wasaga Beach, Ontario L9Z1E9

Open Map
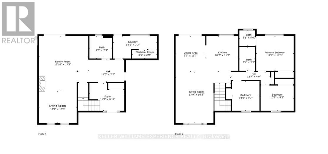
3
Beds
3
Baths

Property Details

Basic Information
MLS® ID: 29155856
Status: Active
Bedrooms: 3
Bathrooms: 3
Partial Bathrooms: 2
Location
Full Address: 12 Riverdale Avenue Wasaga Beach, Ontario L9Z1E9
City: Wasaga Beach
Province/State: Ontario
Postal Code: L9Z1E9
Country: Canada
Coordinates: 44.4930121, -80.043128
Property Details
Property Type: house
Utility Information

Financial Details

Detail Amount
List Price $639,999

Financial Calculator

Enter your home purchase details to estimate your monthly mortgage payment.

$
%
years
%
$
$
%

Already know your loan amount? Calculate your payment details here.

$
years
%

Location Details

Wasaga Beach Property Description

Tons of natural light, effortless indoor/outdoor living, and a perfect location for active families – this warm and inviting 2-storey home offers over 1,800 sq ft of well-designed living space in the heart of Wasaga Beach. Bright and functional, the home features numerous recent upgrades, including new windows and doors (2023-2025), a new furnace and A/C (2025), new induction stove (2023), fresh paint, pot lights, a paved driveway, and an owned hot water tank. A charming powered garden shed adds extra convenience for storage or hobbies. The home also offers excellent in-law suite potential, with a fire-rated door already in place to separate the main and upper levels-ideal for multi-generational living or added flexibility. The layout promotes easy everyday living with great indoor/outdoor flow. Enjoy a drive-through gated, fully fenced, serene backyard, complete with a 2-tiered deck, ideal for BBQs, relaxing, and entertaining. The lot is nicely landscaped, offering curb appeal and low-maintenance enjoyment. Located just steps from shopping, parks, schools, trails, and all the amenities and attractions Wasaga Beach is known for, this home truly checks the boxes for families and active lifestyles. Motivated seller-don’t miss this opportunity! (id:58062)